Skip to main content

Skipulag nýs tjaldsvæðis Norðfirðinga á lokametrunum

FréttirThis email address is being protected from spambots. You need JavaScript enabled to view it.Fyrst birt 28. okt 2024 14:05Uppfært 28. okt 2024 14:30

Nýtt deiliskipulag fyrir nýja staðsetningu tjaldsvæðis Neskaupstaðar að Strandgötu 62 liggur nú fyrir. Búið er að taka tillit til og svara öllum athugasemdum sem fram komu í ferlinu.

Nýja tjaldsvæðið mun rísa á skilgreindu hættusvæði undir Tröllagili en það mun þó eingöngu verða opið yfir sumarmánuðina þegar hvers kyns flóðahætta er lítil sem engin.

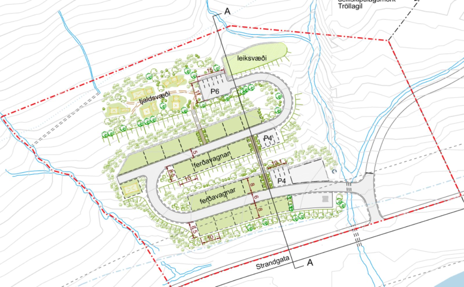
Deiliskipulagssvæðið má sjá á meðfylgjandi korti en það samanstendur af tjaldsvæði, þjónustubyggingu, vegi, bílastæðum, grónu svæði og opnu náttúrusvæði. Það verður þrístallað þar sem fólk með ferðavagna getur komið sér fyrir á tveimur neðri stöllunum en sá efsti ætlaður hefðbundnum tjöldum og þar einnig lítið leiksvæði.

Alls bárust sjö umsagnir um skipulagið, sex frá stofnunum en ein frá einstaklingi, en engar alvarlegar athugasemdir komu fram. Heilbrigðiseftirlit Austurlands vill að sett verði upp safnræsi í stað rotþróa vegna fráveitu frá tjaldsvæðinu og hyggst Fjarðabyggð verða við þeirri kröfu. Náttúrufræðistofnun bendir á að válistategundin lyngbúi hafi fundist á þessum slóðum og ástæða sé til að kanna sérstaklega hvort tegundin finnist á eða við svæðið. Mun það verða kannað.

Mynd/Teikning: Fjarðabyggð